Capannone in vendita

Cerano, Via Milano
€ 450.000
5 locali 5 locali
1500 Mq 1500 Mq
3 bagni 3 bagni

Capannone in vendita

Cerano, Via Milano

Descrizione annuncio

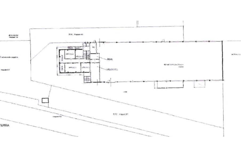
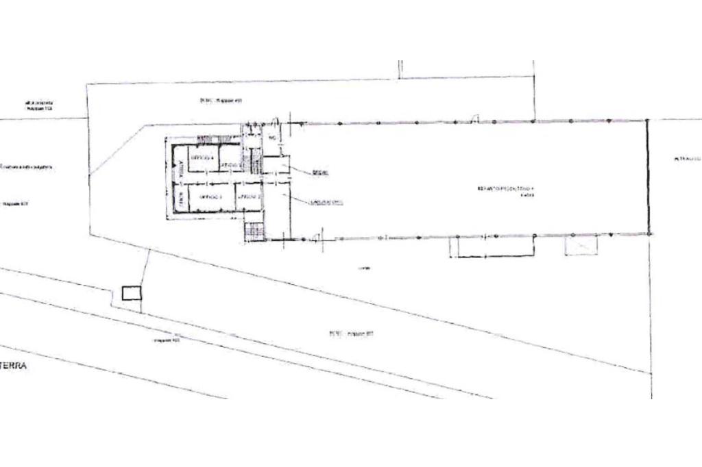
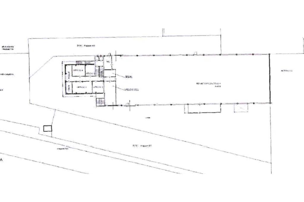
Nella zona industriale di Cerano, sulla SP6 che conduce al centro, su strada di facile accesso e comoda anche per i mezzi pesanti, proponiamo, in VENDITA, capannone uso industriale di ca 1.500 mq con uffici al Piano Terra di ca 50 mq ed annessa abitazione al Piano Primo di ca 70 mq;

completa la soluzione l’area esterna di ca 1.500 mq.

L’immobile è completamente da ristrutturare, libero subito e con portoni anche laterali.

Altezza interna ca 6 metri, ideale come deposito – magazzino ma anche per lavorazioni industriali – artigianali.

Mostra tutto

Nelle vicinanze

Trasporto pubblico Trasporto pubblico
Via Milano 85 (Cerano)
Via Milano 85 (Cerano)
180 m
Via Milano - Via Don Merlino
Via Milano - Via Don Merlino
490 m
Ricariche auto elettriche Ricariche auto elettriche
Cerano Bricco | EnelX
1,0 Km
Cerano IV Novembre | EnelX
1,2 Km
Cerano Prati Nuovi | EnelX
1,7 Km
Scuole Scuole
Scuole
1,0 Km
Farmacia Farmacia
Farmacia Cocconcelli
1,1 Km
Farmacia Boca
1,3 Km
Supermercati Supermercati
Coop
1,9 Km
Bar Bar
L'Astro
1,1 Km
BarCè
1,3 Km
Alex Bar
3,0 Km
Bar Prentiss
3,0 Km
Ristoranti Ristoranti
Ristorante Bar Venezia
2,2 Km
La Cuccagna
2,5 Km
Trattoria dei Pescatori
2,6 Km
La Chiocciola Trattoria Ristorante
2,8 Km
Al vecchio barile
3,0 Km
Mostra tutto

Caratteristiche

Rif.:
61009053
Piano:
Terra di 2
Totale piani:
2
Condizionamento:
Assente
Ascensore:
No
Riscaldamento:
Assente
Mostra tutto
Prezzo Prezzo
€ 450.000
Rata mutuo Rata mutuo
€ 2.124 / mese
Spese annue Spese annue
€ 0
Proponi il tuo prezzoProponi il tuo prezzo

Classe Energetica

Questo immobile è esente da classe energetica
Anno di costruzione:
1967
Riscaldamento:
Assente

Ti interessa visionare l'immobile?

Fissa un appuntamento  Fissa un appuntamento

Richiedi informazioni

Clicca su Leggi per aprire l'informativa
* Questi campi sono obbligatori

Calcola il tuo mutuo

Semplice e senza impegno
Anticipo

( % )
Mutuo

( % )

pochi semplici passi

inserisci i tuoi dati
Questionario completato
Grazie per aver richiesto un appuntamento senza impegno con un nostro Consulente del Credito e Assicurativo.

Hai inserito correttamente tutti i dati necessari e a breve riceverai una e-mail con un link da convalidare per inviare i tuoi dati.
Affiliato
Impresa Trade Srl
Via Roma, 118 20013 Magenta (MI)

Il nostro staff


  • Giuseppe Cantoni
    Affiliato

  • Alice Cantoni
    Coordinatrice

  • Giulia Fera
    Collaboratrice

  • Matteo Pollaci
    Collaboratore

  • Elisa Ranzani
    Coordinatrice
Via Roma, 118 20013 Magenta (MI)
Zona: Magenta-Hinterland Sud Ovest Milano
Mostra su mappa
Orari: lunedì/venerdì dalle 8.30 - 13.00 e 14.00 - 19.00; sabato 9.00 - 12.30
Affiliato
Impresa Trade Srl
Via Roma, 118 20013 Magenta (MI)

2025 Tecnocasa Franchising S.p.A. - P. IVA 08365160152 - Via Monte Bianco 60/A 20089 Rozzano (MI). Ogni agenzia ha un proprio titolare ed è autonoma. Privacy policy | Policy utilizzo | Cookie policy