Deposito in vendita

Corbetta, Via dei Badilanti
1 locale 1 locale
320 Mq 320 Mq

Deposito in vendita

Corbetta, Via dei Badilanti

Descrizione annuncio

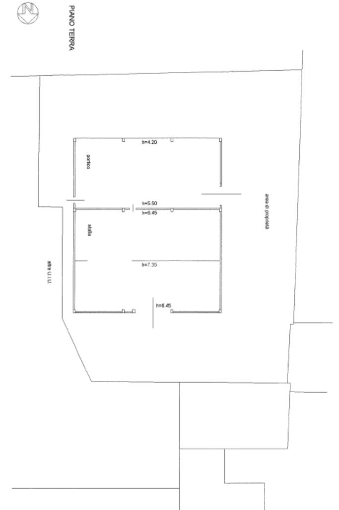
In contesto tranquillo e in zona prevalentemente residenziale, proponiamo, IN VENDITA, deposito/box di 320 mq ca con tettoia esterna di 220 mq ca, caratterizzato da spazi interni ampi.

L’immobile presenta un’altezza interna di 6 mt, rendendolo particolarmente adatto per attività artigianali, di deposito e stoccaggio.

Completa la proprietà un’area esterna privata di 1500 mq ca.

Disponibile anche IN AFFITTO ad € 1.100,00 mensili.

Disponibile da subito.

Mostra tutto

Nelle vicinanze

Trasporto pubblico Trasporto pubblico
Trasporto pubblico
380 m
Piazza Beretta
Piazza Beretta
2,8 Km
Ricariche auto elettriche Ricariche auto elettriche
Albairate Paolo VI | EnelX
2,8 Km
Albairate Carducci | EnelX
2,9 Km
Scuole Scuole
Scuole
70 m
Scuola Primaria Villa Favorita
2,5 Km
Scuola Primaria Aldo Moro
2,5 Km
Istituto Professionale Vasco Mainardi
2,7 Km
Scuola Secondaria di Primo Grado Simone da Corbetta
2,8 Km
Farmacia Farmacia
Farmacia Cerello
370 m
Farmacia del Corso
2,5 Km
Farmacia
2,7 Km
Farmacia Perre Rosario
2,8 Km
Farmacia Chimica del dottor Berti Carlo & C. Sas
2,8 Km
Supermercati Supermercati
Sigma Ok
2,5 Km
U2
2,7 Km
Negozi Negozi
Angolo del Pane
2,7 Km
Centro Carni Valleticino
2,7 Km
el Prestinè
2,9 Km
Negozi
2,9 Km
Bar Bar
Bim Bum Bar
2,5 Km
Bar
2,6 Km
Tiffany
2,9 Km
Alcatraz
3,0 Km
Bar dello Sport
3,0 Km
Ristoranti Ristoranti
RISTORANDRE
590 m
Cascina Santa Croce
1,6 Km
Ristoro Cascina Riazzolo
1,6 Km
Il Cortile di Gabry
2,0 Km
Agriturismo Cascina Conta
2,2 Km
Mostra tutto

Caratteristiche

Rif.:
61197043
Piano:
Terra
Posti auto:
4
Condizionamento:
Assente
Ascensore:
No
Riscaldamento:
Assente
Mostra tutto
Prezzo Prezzo
€ 230.000
Rata mutuo Rata mutuo
€ 1.084 / mese
Anche in affitto a
Proponi il tuo prezzoProponi il tuo prezzo

Classe Energetica

G
G
G
G
G
G
G
G
G
EP globale non rinnovabile:
328.50 kW h/m² anno
EP globale rinnovabile:
0.00 kW h/m² anno
EP invernale del fabbricato:
EP estiva del fabbricato:
Anno di costruzione:
1982
Riscaldamento:
Assente

Ti interessa visionare l'immobile?

Fissa un appuntamento  Fissa un appuntamento

Richiedi informazioni

Clicca su Leggi per aprire l'informativa
* Questi campi sono obbligatori

Calcola il tuo mutuo

Semplice e senza impegno
Anticipo

( % )
Mutuo

( % )

pochi semplici passi

inserisci i tuoi dati
Questionario completato
Grazie per aver richiesto un appuntamento senza impegno con un nostro Consulente del Credito e Assicurativo.

Hai inserito correttamente tutti i dati necessari e a breve riceverai una e-mail con un link da convalidare per inviare i tuoi dati.
Affiliato
Impresa Trade Srl
Via Roma, 118 20013 Magenta (MI)

Il nostro staff


  • Alice Cantoni
    Coordinatrice

  • Matteo Pollaci
    Collaboratore

  • Andrea Pellegatta
    Affiliato
Via Roma, 118 20013 Magenta (MI)
Zona: Magenta-Hinterland Sud Ovest Milano
Mostra su mappa
Orari: lunedì/venerdì dalle 8.30 - 13.00 e 14.00 - 19.00; sabato 9.00 - 12.30
Affiliato
Impresa Trade Srl
Via Roma, 118 20013 Magenta (MI)

2026 Tecnocasa Franchising S.p.A. - P. IVA 08365160152 - Via Monte Bianco 60/A 20089 Rozzano (MI). Ogni agenzia ha un proprio titolare ed è autonoma. Privacy policy | Policy utilizzo | Cookie policy