Capannone in vendita

Robecco Sul Naviglio, Via Dante Alighieri
€ 218.000
5 locali 5 locali
245 Mq 245 Mq
1 bagno 1 bagno

Capannone in vendita

Robecco Sul Naviglio, Via Dante Alighieri

Descrizione annuncio

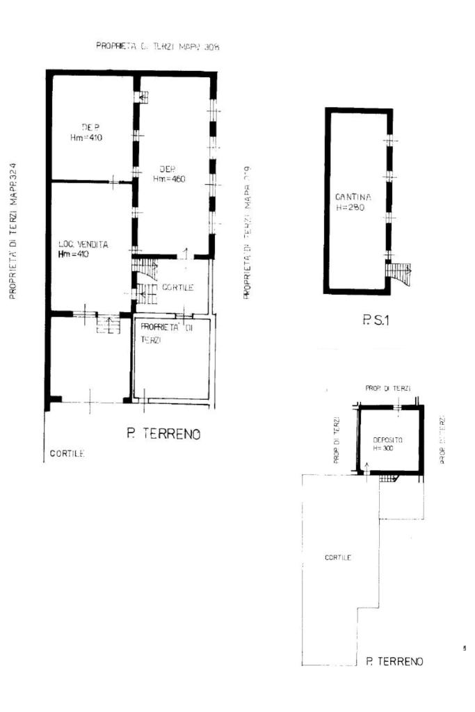
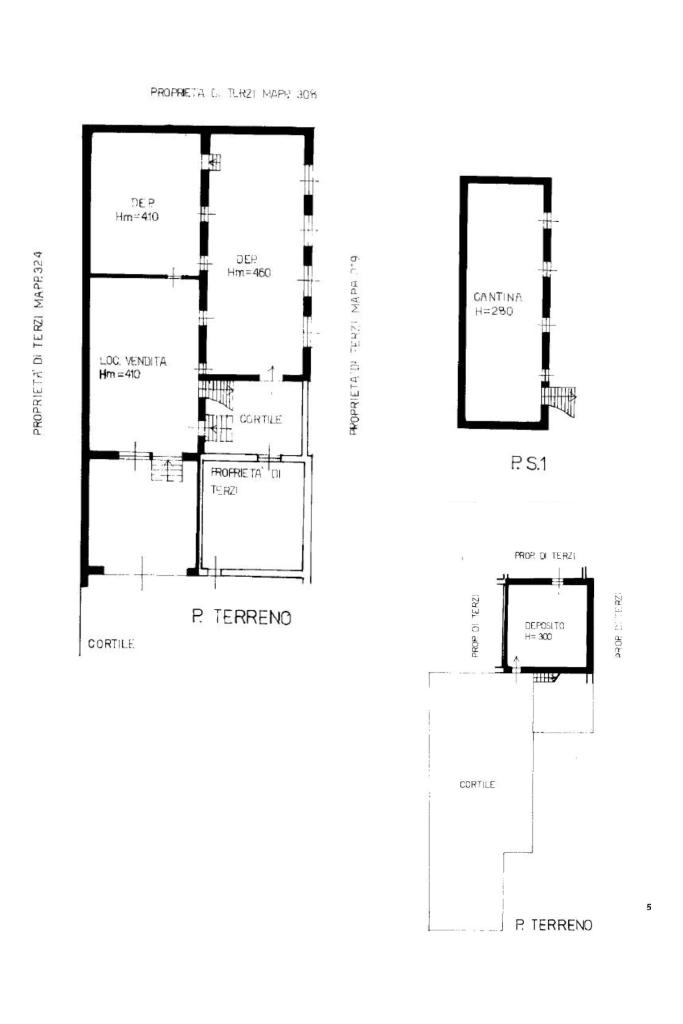
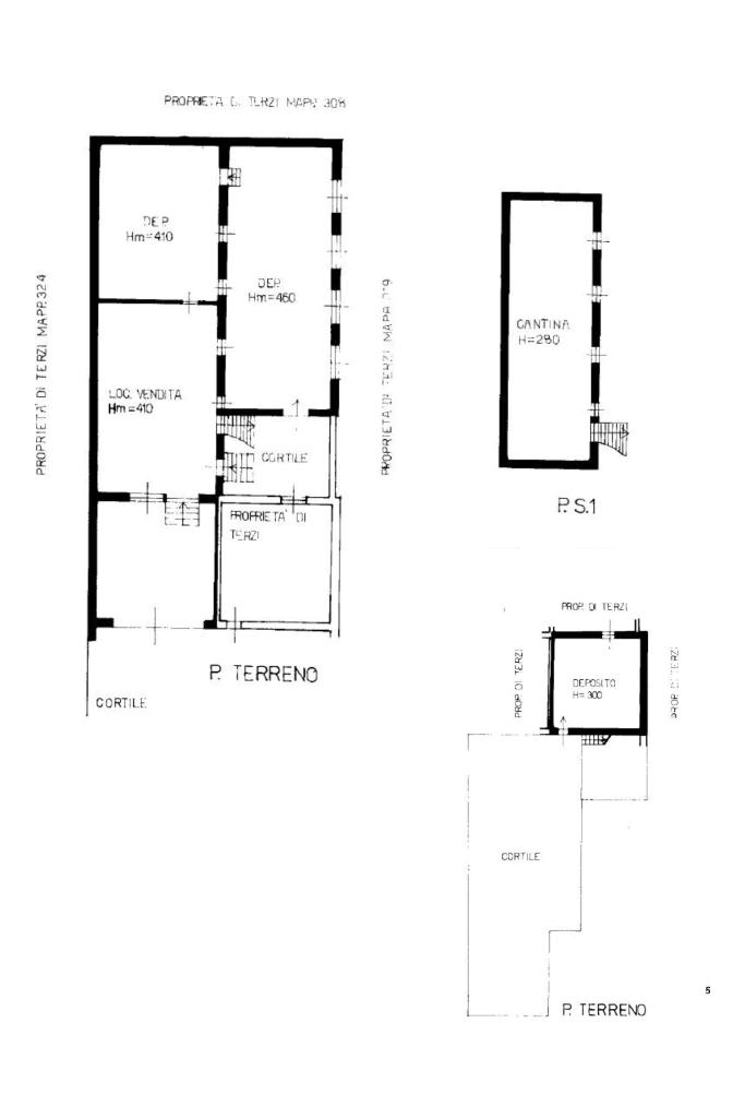
In contesto di corte storica a pochi passi dalla piazza di Robecco, dove un tempo si trovava il Circolino che è stato sede di attività culturali e ricreative, corsi di ballo, di degustazione, di storia, proponiamo, in VENDITA, capannone - deposito di ca 245 mq con servizio.


Al primo piano, il salone, veniva utilizzato dai soci e dalla cittadinanza per assemblee e incontri, venivano allestiti molte pranzi di nozze e feste.


Entrando nel cortile, uno spazio di proprietà, utile per parcheggiare due auto, precede l'ingresso nel primo salone caratterizzato da ampie metrature e una pavimentazione in cotto.

Da qui si accede al secondo salone, molto luminoso grazie alla presenza di numerose finestre e dotato di un soppalco in legno.


Una parte della proprietà è stata adibita a depandance, caratterizzata da travi a vista, composta da soggiorno con cucina, camera da letto matrimoniale e bagno cieco con doccia.


Al centro degli immobili sopra descritti si trova un piccolo e grazioso giardinetto dal quale si scende al locale cantinato dove sono conservati tutt'oggi gli attrezzi della tradizione lavorativa del Circolino.


La proprietà risulta accatastata come deposito/magazzino e non come abitazione residenziale.

Si presta ad essere interessante per esposizioni, enoteca con locale per degustazioni, ristorante o per organizzare feste e ricevimenti.


Libera in tempi brevi.

Mostra tutto

Nelle vicinanze

Trasporto pubblico Trasporto pubblico
Trasporto pubblico
130 m
Viale Pertini - Via San Giovanni (Robecco sul Naviglio)
Viale Pertini - Via San Giovanni (Robecco sul Naviglio)
400 m
Scuole Scuole
Scuole
460 m
Scuola Primaria Giuseppe Verdi
1,3 Km
Scuola materna Papa Giovanni Paolo II
2,8 Km
Scuola elementare statale Edmondo De Amicis
2,8 Km
S.E.A.M.
2,8 Km
Farmacia Farmacia
Farmacia Robecco
70 m
Farmacia Benessere
1,5 Km
Farmacia Dottor Santagostino
2,1 Km
Farmacia Comunale Pontevecchio
2,8 Km
Farmacia San Girolamo
2,8 Km
Supermercati Supermercati
U2
2,7 Km
MD
3,0 Km
Negozi Negozi
Negozi
130 m
Panificio D'Acunto
260 m
ForeverIsLove
300 m
Centro Carni Valleticino
1,5 Km
La Bottega di Casterno
1,6 Km
Bar Bar
Bar
70 m
Bim Bum Bar
1,4 Km
Osteria dei cacciatori
1,6 Km
Osteria della Madonna
1,6 Km
Alcatraz
1,9 Km
Ristoranti Ristoranti
La Casa della Pizza
0 m
Lucrezia
250 m
Ristorante della Ripa
300 m
El Guascoro
480 m
La Gallina d'Oro
640 m
Mostra tutto

Caratteristiche

Rif.:
61033625
Piano:
Terra di 2
Totale piani:
2
Posti auto:
1
Condizionamento:
Autonomo
Ascensore:
No
Mostra tutto
Prezzo Prezzo
€ 218.000
Rata mutuo Rata mutuo
€ 1.019 / mese
Spese annue Spese annue
€ 0
Proponi il tuo prezzoProponi il tuo prezzo

Classe Energetica

Questo immobile è esente da classe energetica
Anno di costruzione:
1900
Riscaldamento:
Autonomo
Tipo impianto:
A radiatori
Tipo alimentazione:
Metano

Ti interessa visionare l'immobile?

Fissa un appuntamento  Fissa un appuntamento

Richiedi informazioni

Clicca su Leggi per aprire l'informativa
* Questi campi sono obbligatori

Calcola il tuo mutuo

Semplice e senza impegno
Anticipo

( % )
Mutuo

( % )

pochi semplici passi

inserisci i tuoi dati
Questionario completato
Grazie per aver richiesto un appuntamento senza impegno con un nostro Consulente del Credito e Assicurativo.

Hai inserito correttamente tutti i dati necessari e a breve riceverai una e-mail con un link da convalidare per inviare i tuoi dati.
Affiliato
Impresa Trade Srl
Via Roma, 118 20013 Magenta (MI)

Il nostro staff


  • Alice Cantoni
    Coordinatrice

  • Giulia Fera
    Collaboratrice

  • Matteo Pollaci
    Collaboratore
Via Roma, 118 20013 Magenta (MI)
Zona: Magenta-Hinterland Sud Ovest Milano
Mostra su mappa
Orari: lunedì/venerdì dalle 8.30 - 13.00 e 14.00 - 19.00; sabato 9.00 - 12.30
Affiliato
Impresa Trade Srl
Via Roma, 118 20013 Magenta (MI)

2026 Tecnocasa Franchising S.p.A. - P. IVA 08365160152 - Via Monte Bianco 60/A 20089 Rozzano (MI). Ogni agenzia ha un proprio titolare ed è autonoma. Privacy policy | Policy utilizzo | Cookie policy